Christopher Murfin Architect


prime house










Working for Jestico + Whiles.
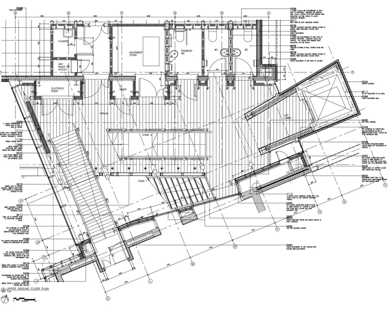
Situated on a sloping site over a railway tunnel, this project presented a plethora of design and technical challenges. Chris successfully resolved the complex plan geometries and level changes in order to maximise the clients floor area while meeting Network Rails increasing demands on the tunnel.
